Recently Played

Recently Played
Open Modal
On Air
Weekdays 6-11am Sponsored by The Brick

Peace River Council Sets 2026 Utility Rates, Delays Key Capital Project

peace-river-5

Peace River Town Council approved several key decisions during its last regular council meeting of the year on December 10, including utility rate changes, capital budget amendments, and next steps for municipal properties.

Council passed the 2026 Utility Rates Bylaw, setting water and sewer rate increases at 5% each. The approved increases are roughly half of what was recommended under the Town’s utility rate model. Council said the decision reflects a balance between maintaining affordability for residents while still planning responsibly for future infrastructure needs.

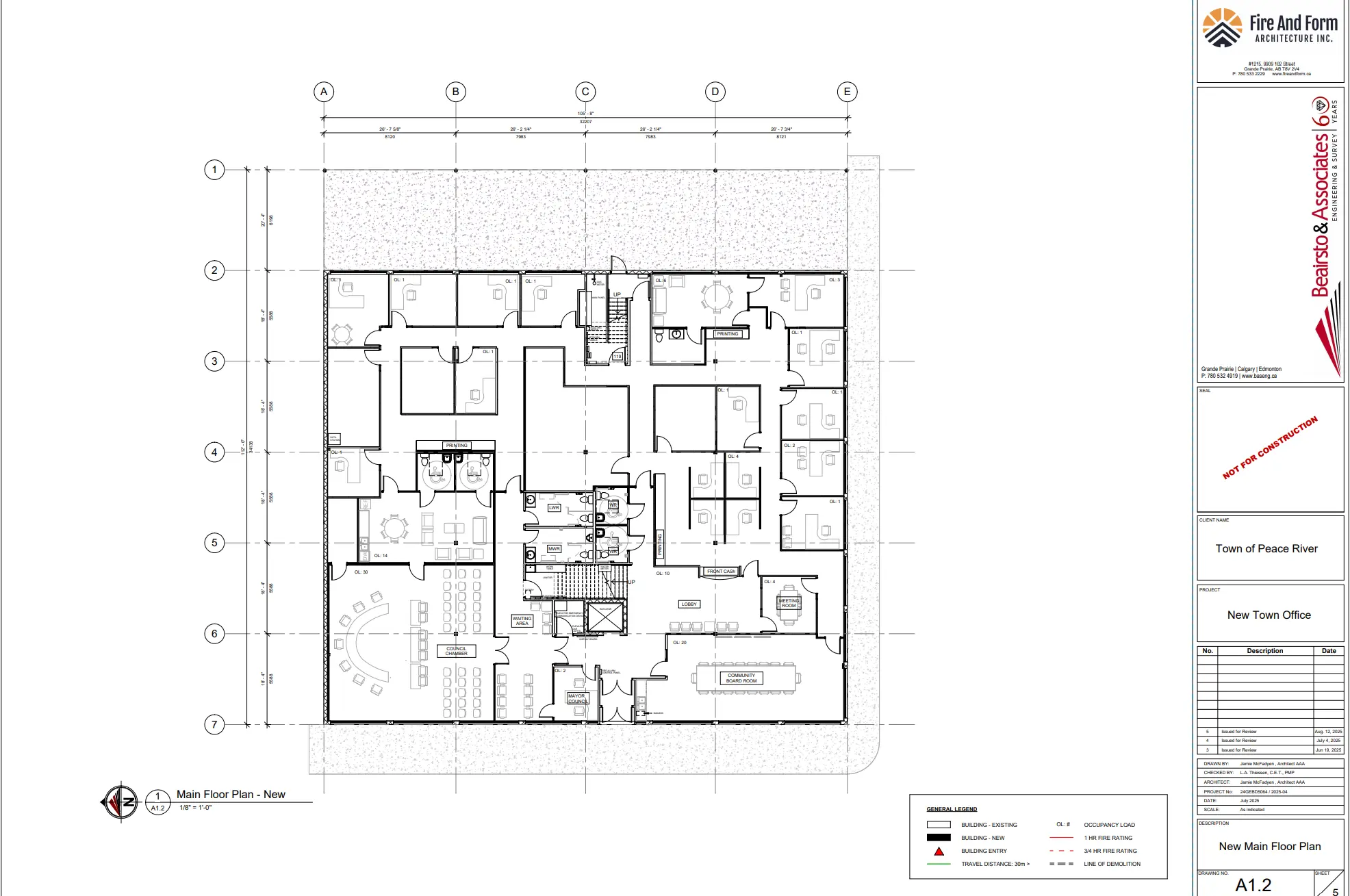
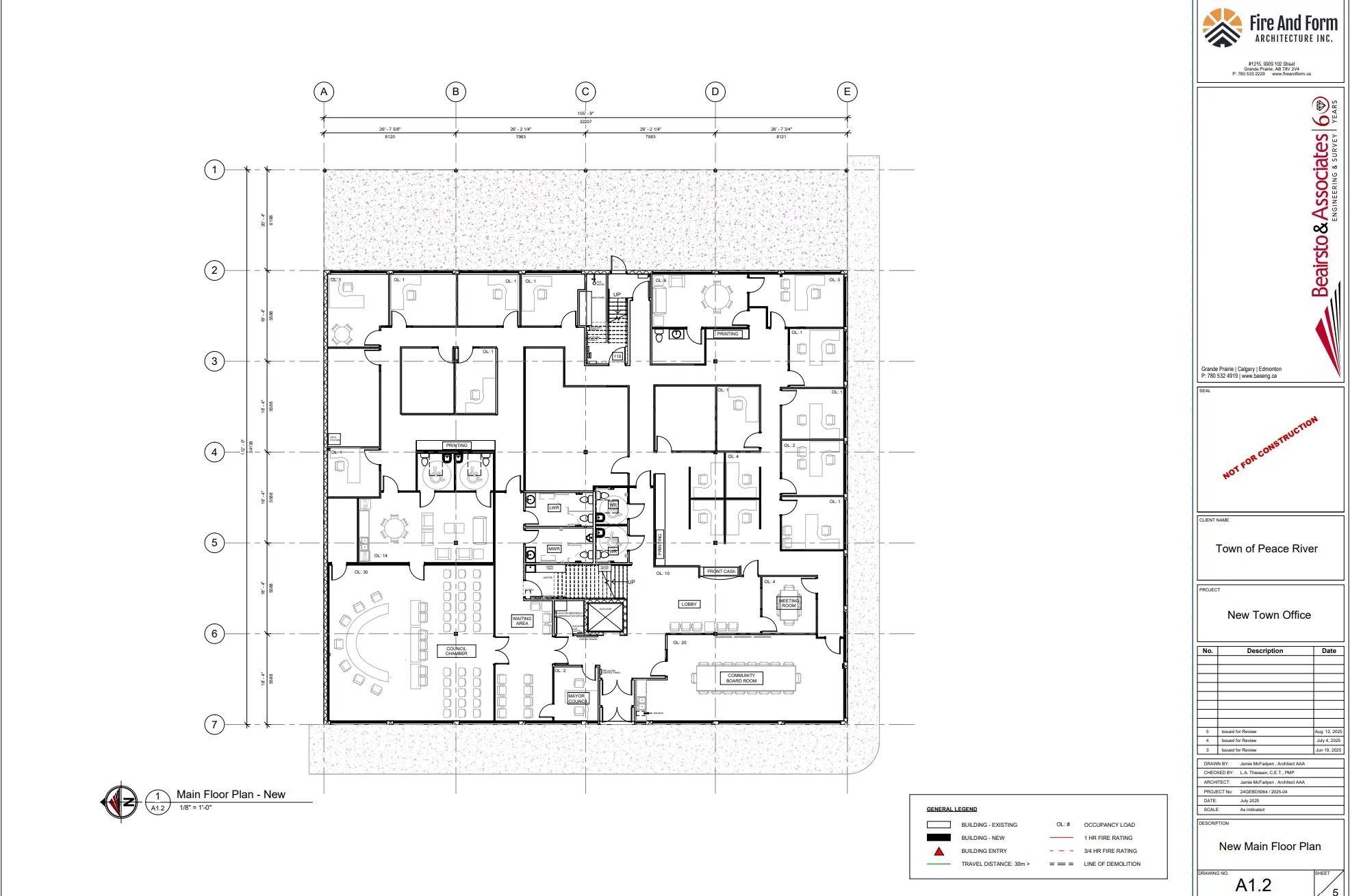
Council also received an update on the new Town Hall project from Pat Fisher, Director of Infrastructure and Development. The presentation included conceptual floor plans for the proposed building – these can be viewed at the bottom of the story.

The 2026 Capital Budget was adopted with several amendments. Council voted to remove $1 million allocated for Town Hall renovations in 2026. So the floor plans in the works do not appear to be coming to fruition within the next year. Also delayed is $1.25 million earmarked for the demolition of the Belle Centre pending further information, and $120,000 planned for the demolition of the property known as Juliette’s Place.

In a related decision, Council directed Administration to issue an Expression of Interest for the sale and remediation of Juliette’s Place, a property located on Main Street.

Keith Hopper, Trending 55

Courtesy: Town of Peace River

Recommended Posts

Loading...